TRAUSDORF AN DER WULKA
am Fuße des Leithagebirges
Die Gemeinde Trausdorf an der Wulka mit ihren rd. 2.200 Einwohnern liegt am Fuße des Leithagebirges und ist in die reizvolle Landschaft des Nordburgenlands eingebettet.
Die Nähe zu Eisenstadt und zum Neusiedler See verbindet ländliche Ruhe mit allen Vorteilen einer zentralen Lage. Trausdorf punktet mit einer intakten Dorfgemeinschaft, vielfältigen Freizeitmöglichkeiten und einer ausgezeichneten Infrastruktur für Familien.
Wer naturnah wohnen und gleichzeitig kurze Wege in die Stadt genießen möchte, findet hier den idealen Lebensmittelpunkt.

NEUBAU DOPPELHÄUSER
DAS PROJEKT
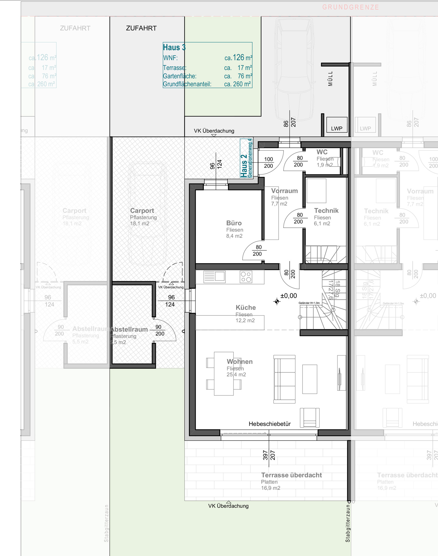
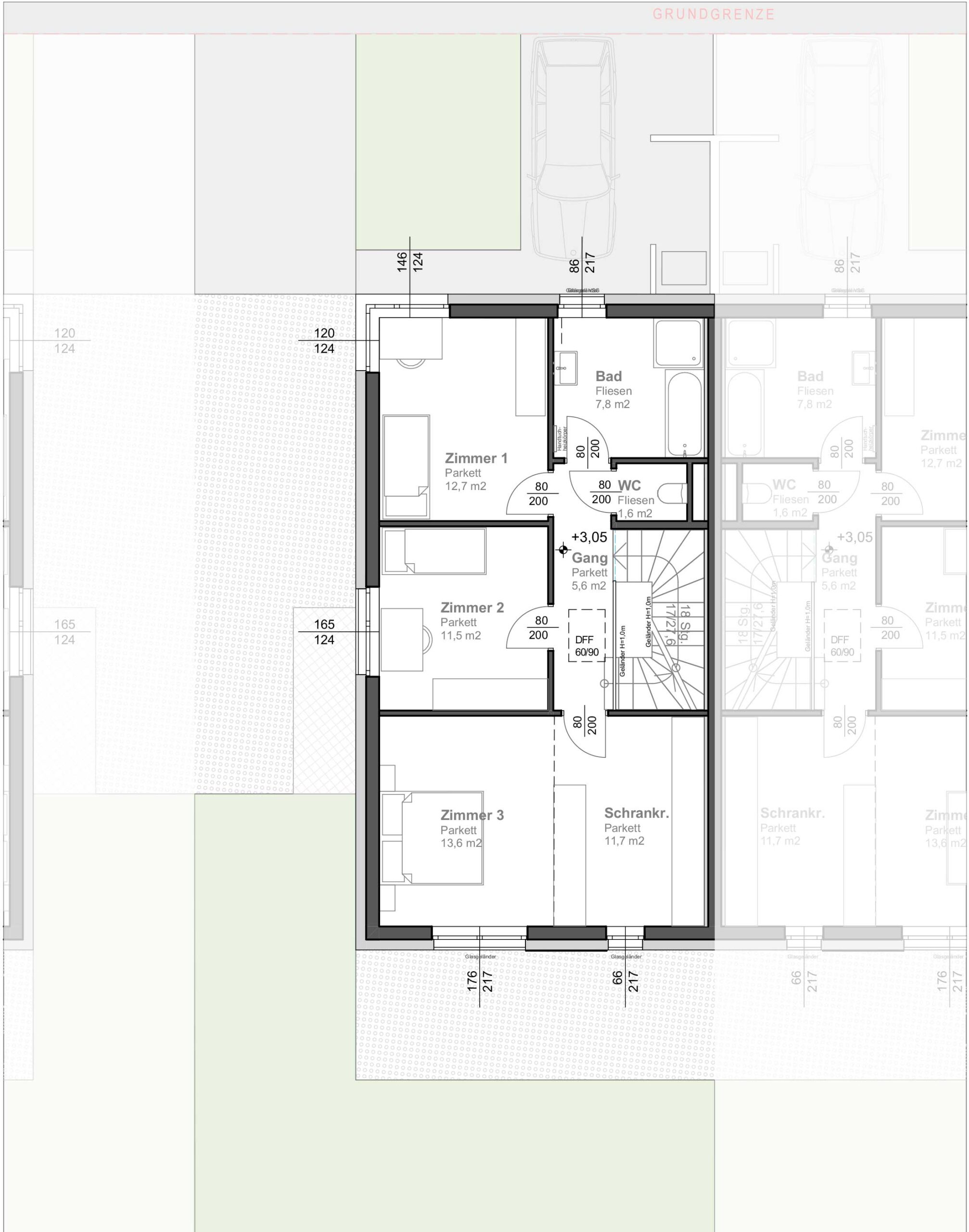
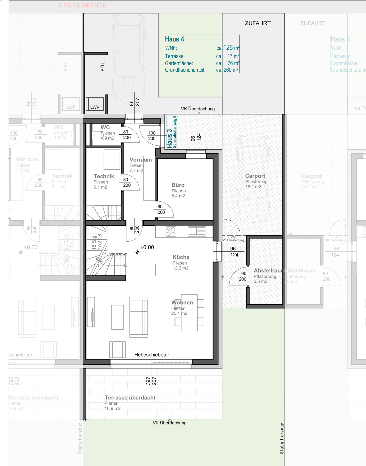
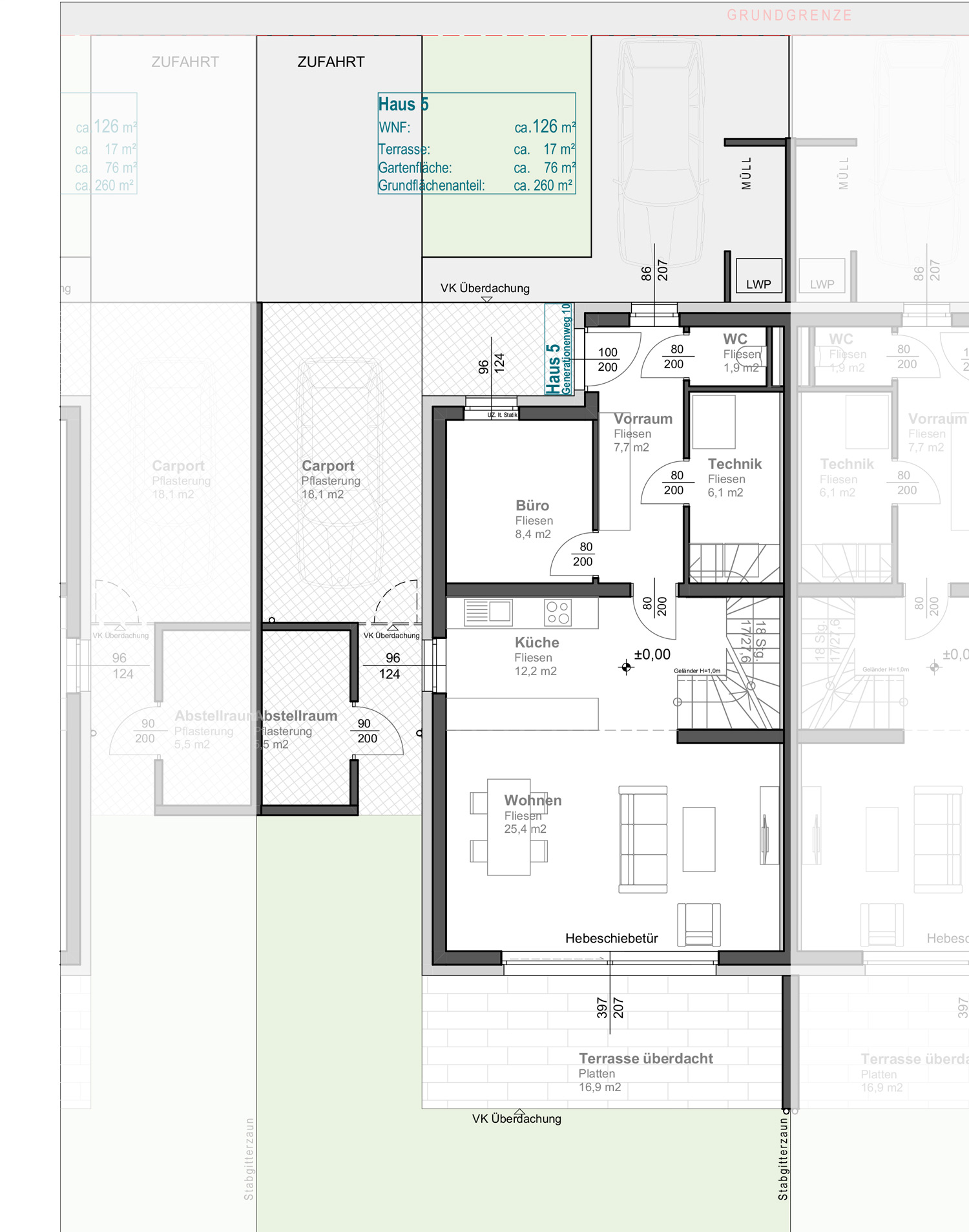
Am Generationenweg in Trausdorf werden von der SOWO als Eigentümerin und Bauherrin ab Sommer 2025 8 Wohneinheiten (4 Doppelhäuser) errichtet.
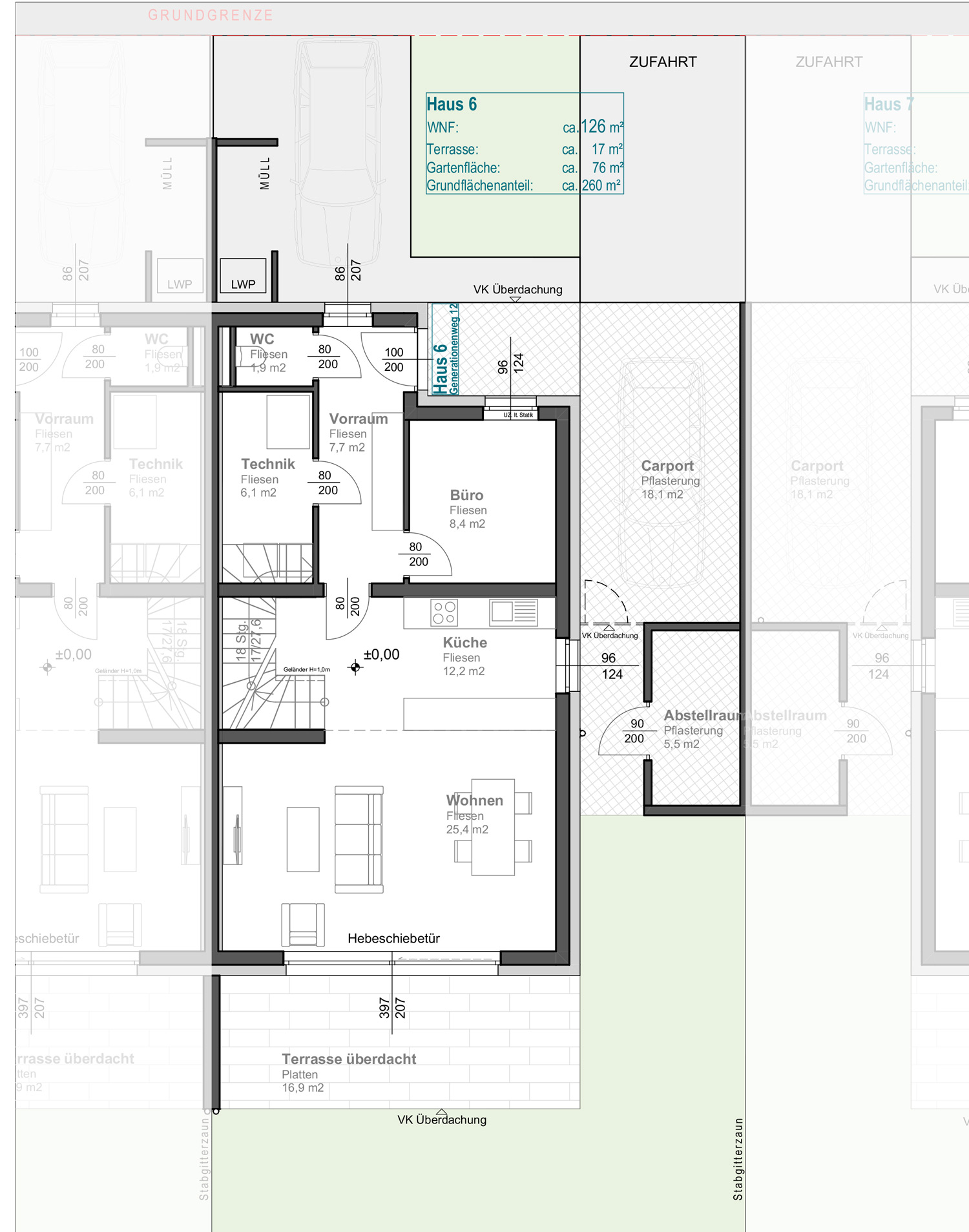
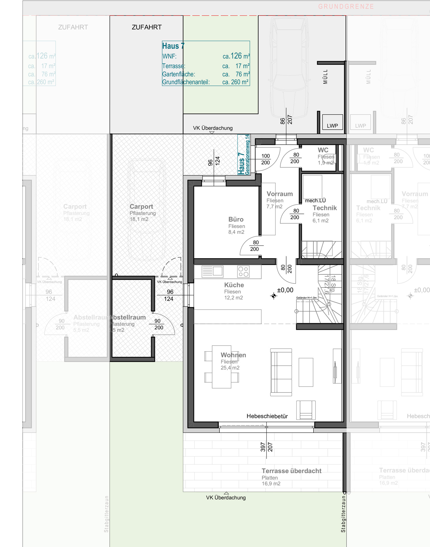
Alle Häuser verfügen über großzügige Eigengärten und 2 Stellplätze (einer davon überdacht).
WOHNEN DETAILS
7061 TRAUSDORF AN DER WULKA
4 Doppelhäuser zu je 2 Wohneinheiten in ruhiger Lage
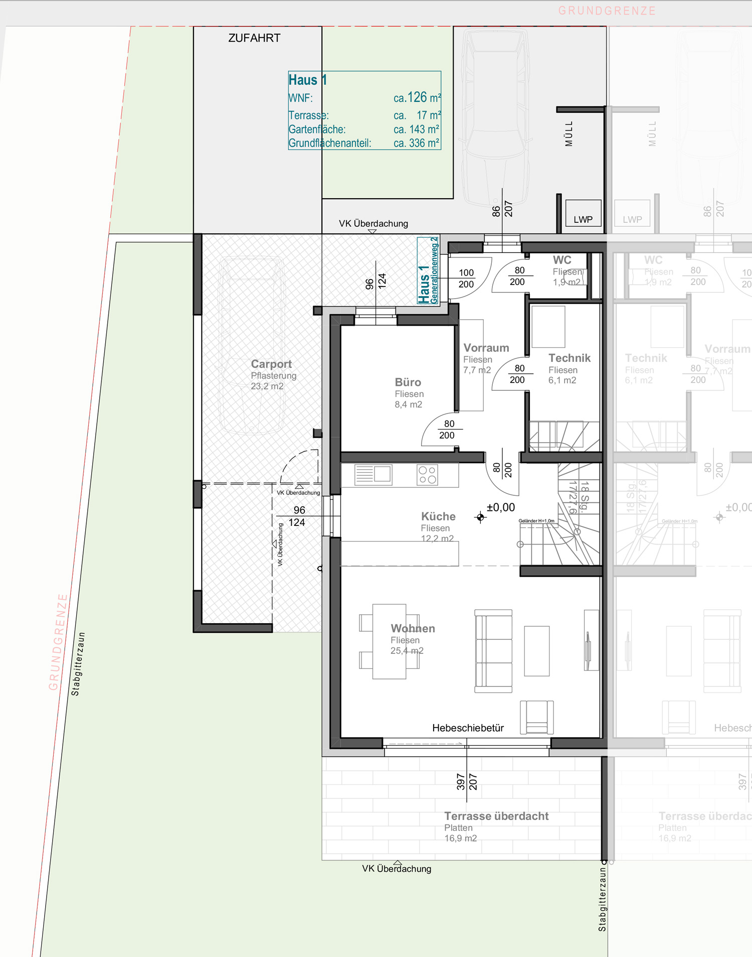
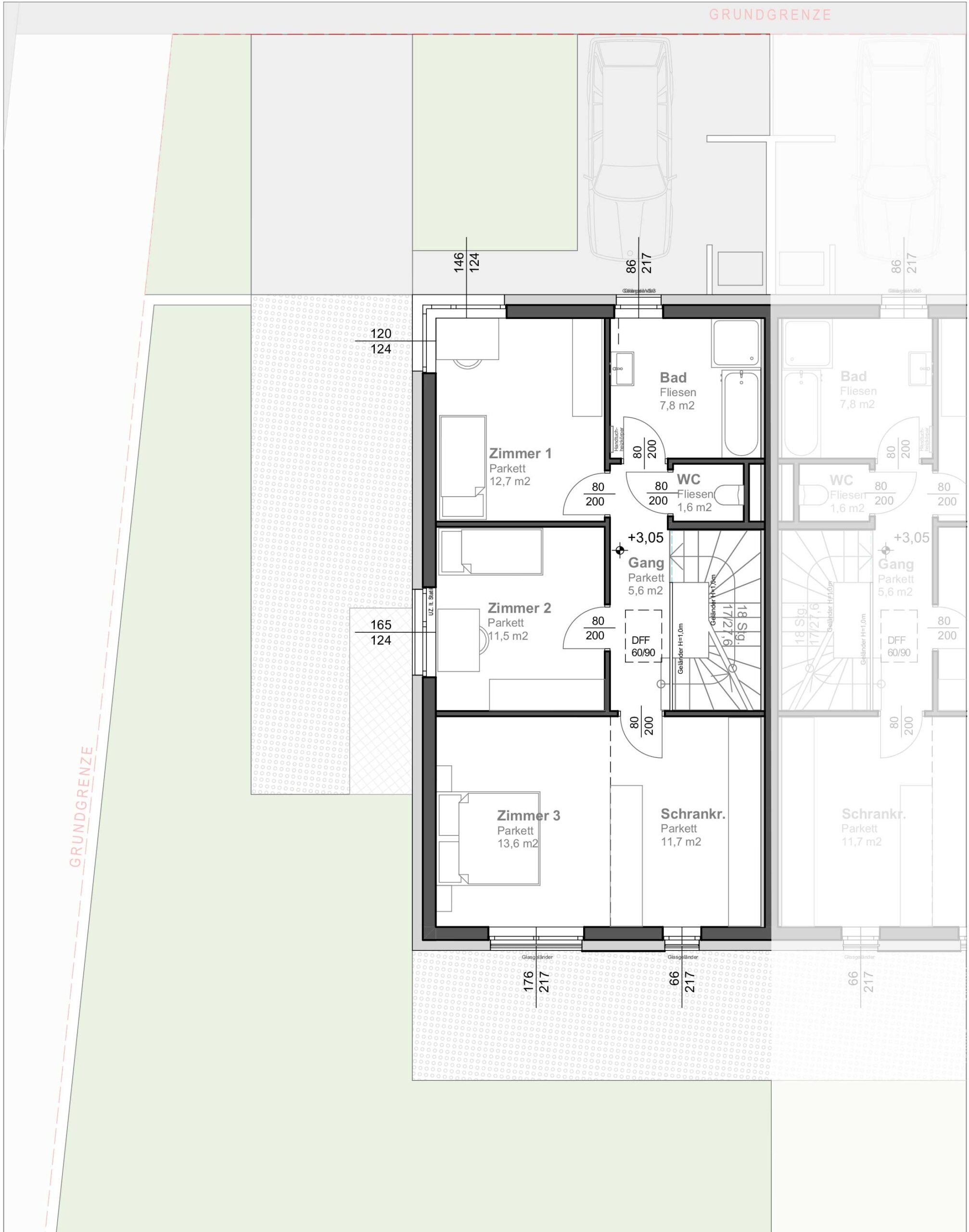
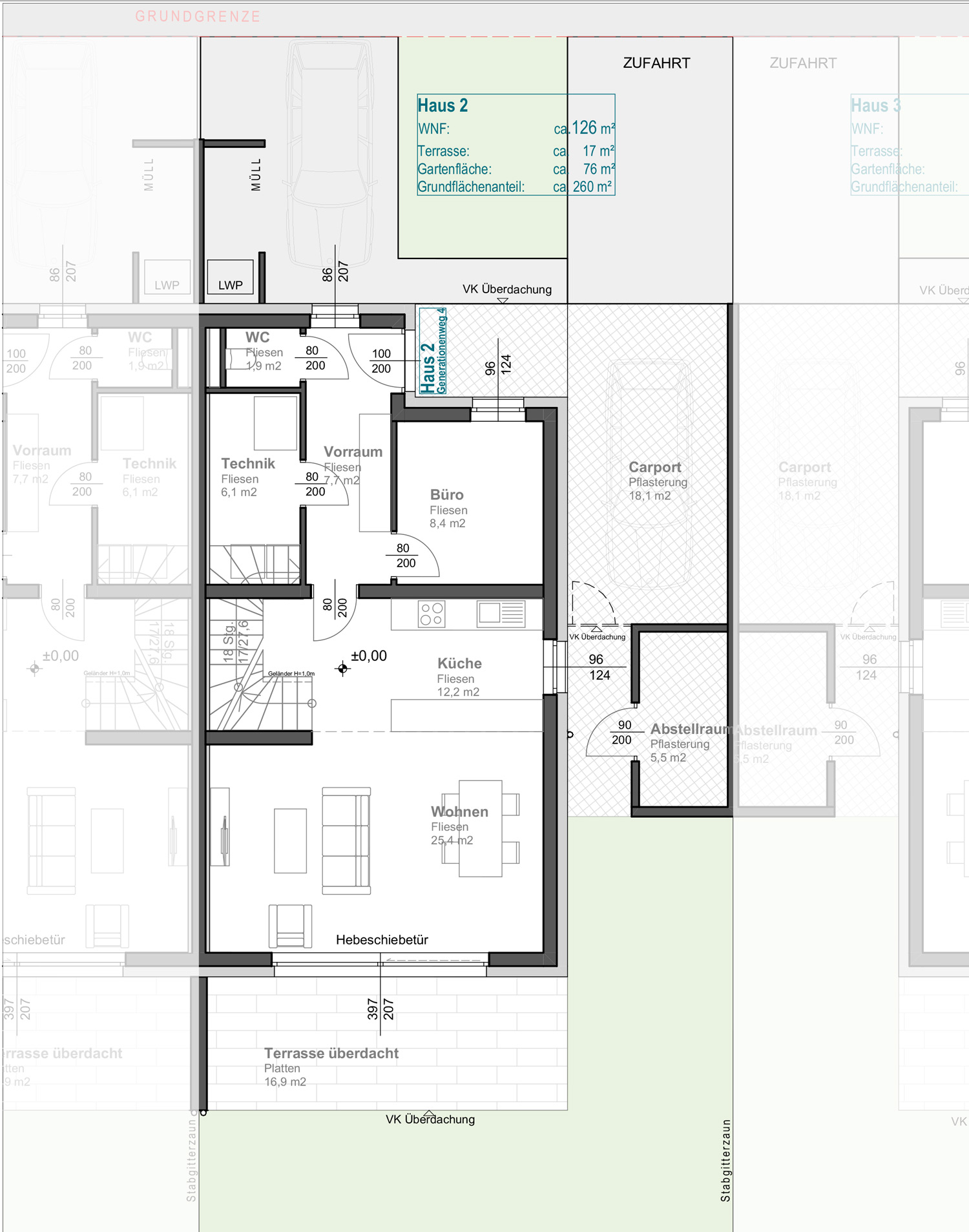
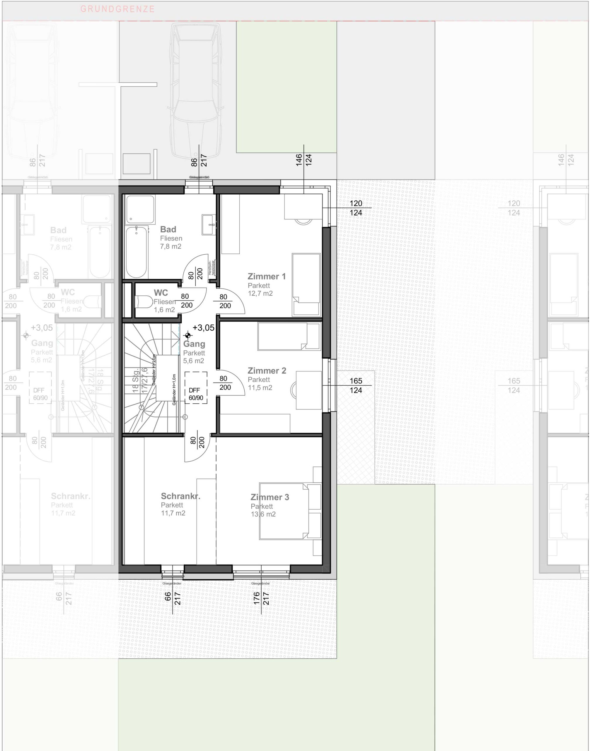
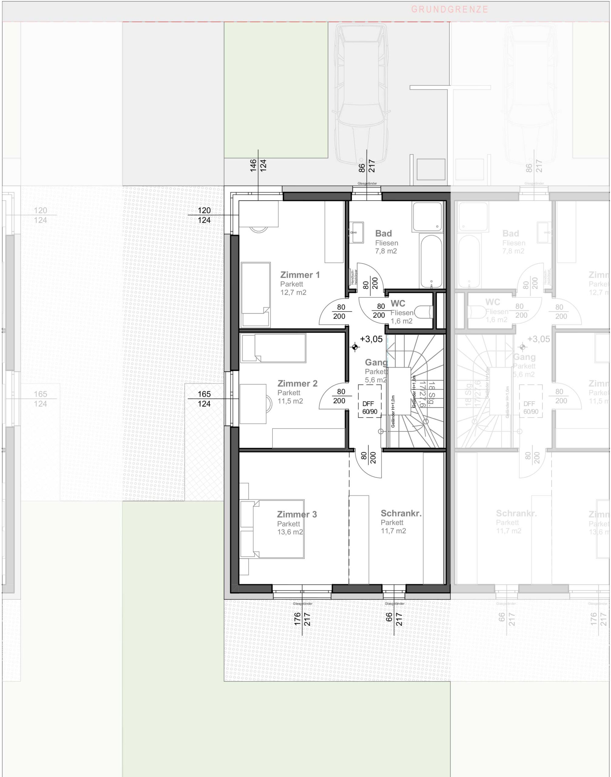
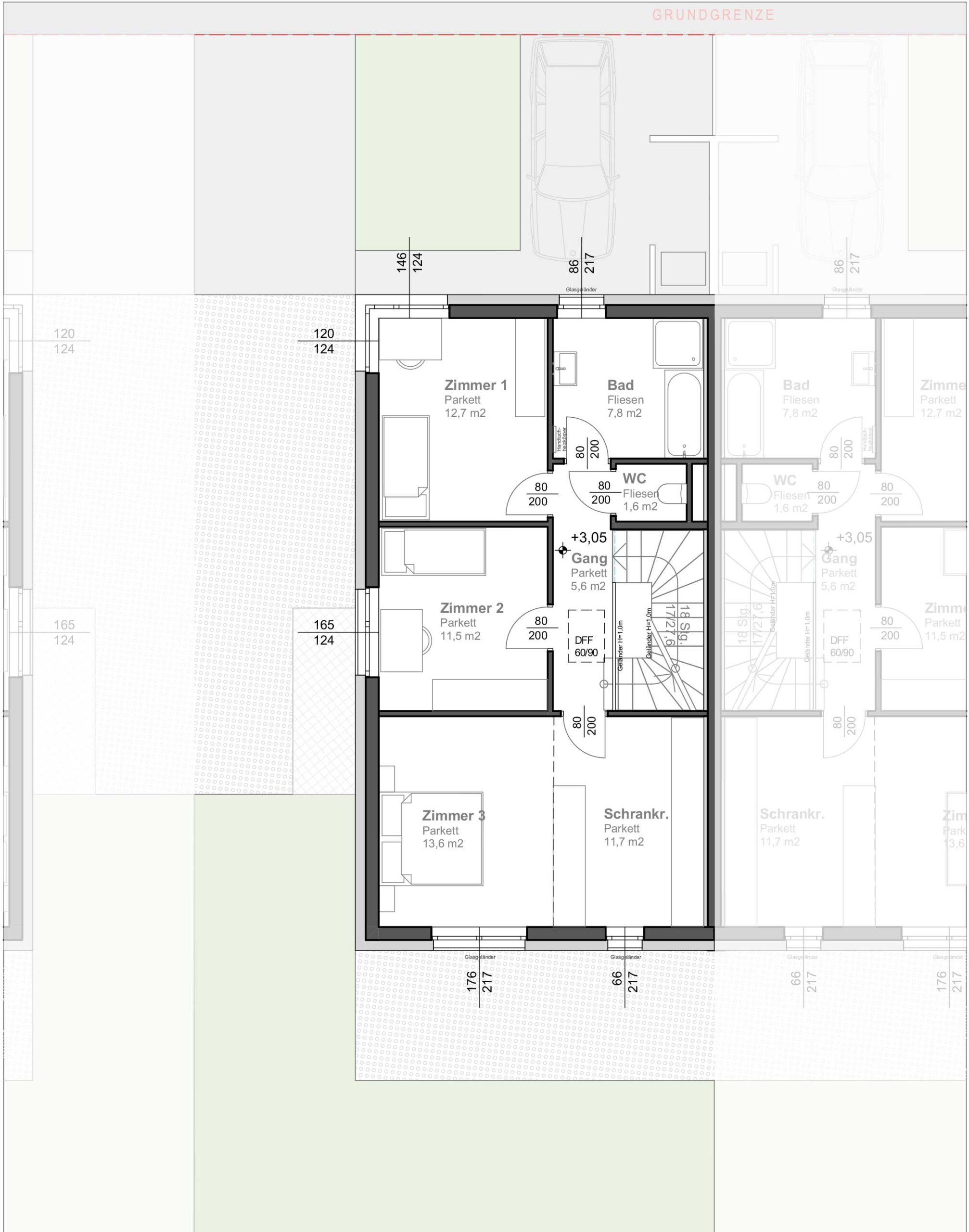
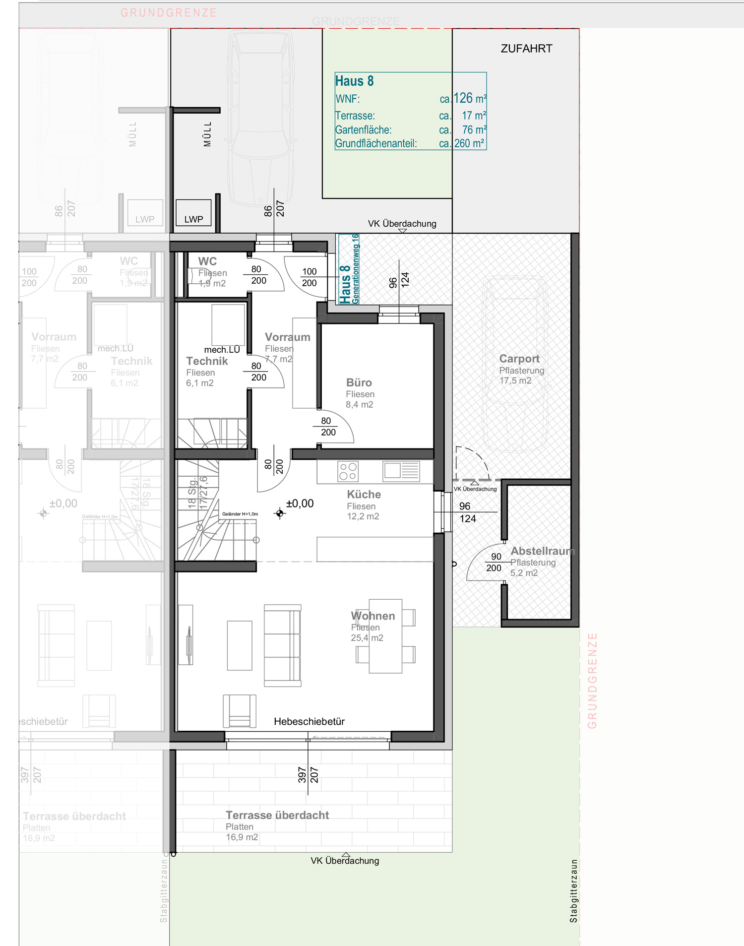
Größe der Wohneinheit (Wohnfläche): ca. 126m²
Alle Reihenhäuser verfügen über großzügige Eigengärten und 2 Stellplätze (1x überdacht).
Baubeginn: Sommer 2025
Geplante Fertigstellung: Herbst 2026

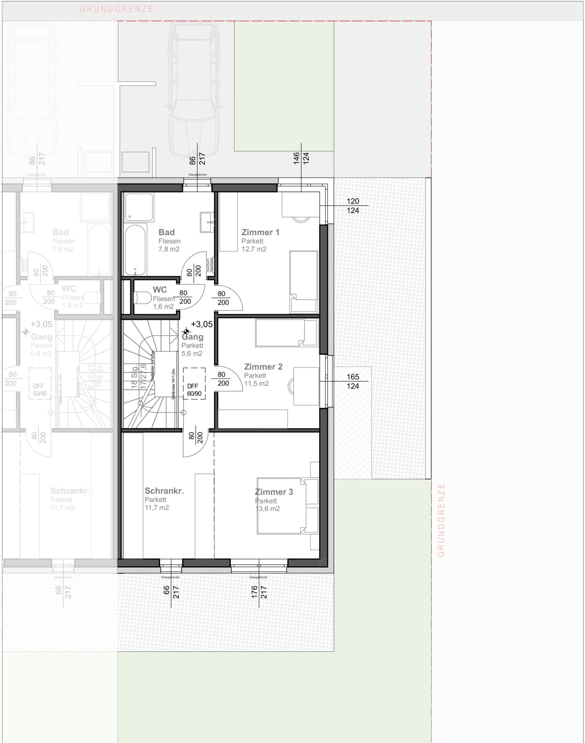
PLÄNE / GRUNDRISSE
NEUBAU VON DOPPELHÄUSERN IN TRAUSDORF
ANFRAGE
PROJEKT TRAUSDROF / WULKA
Sie interessieren sich für das Projekt in Trausdorf an der Wulka?
Senden Sie uns einfach Ihre Anfrage und wir melden uns in Kürze bei Ihnen.
(Die Anfrage ist unverbindlich)



















